Leave a Message

By providing your contact information to Adam Slivka and Team, your personal information will be processed in accordance with Adam Slivka and Team's Privacy Policy. By checking the box(es) below, you consent to receive communications regarding your real estate inquiries and related marketing and promotional updates in the manner selected by you. For SMS text messages, message frequency varies. Message and data rates may apply. You may opt out of receiving further communications from Adam Slivka and Team at any time. To opt out of receiving SMS text messages, reply STOP to unsubscribe.

Thank you for your message. We will be in touch with you shortly.

Explore Our Properties

Property Description

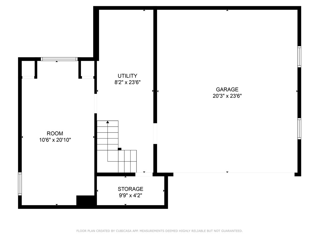
SUPER spacious 3bdrom 2-sty w/great sized bedrooms, tons of closet space and a finished gameroom. L-Shaped kitchen with Oak cabinets in excellent condition, built-in pantry, nice size eat in area, door to exterior, GORGEOUS family room with beamed cathedral ceiling, floor to ceiling brick fireplace, wet bar, tons of natural light, large living and dining room, both with crown molding and partial bath finish the main floor. HUGE master bedroom w/walk in closet, full bath, FANTASTIC sized 2nd & 3 bedrooms. Large lower level laundry area, finished game room with built-ins, great storage under the front porch, oversized garage, tons of parking on the concrete driveway, large partially covered deck w/built-in planters and a FABULOUS location in Penn Trafford School District. Easy, quick, access to PA Turnpike (Irwin exchange), shopping and restaurants on Rt. 30 & 22.

Overview

Property Status
Sold
Lot Size
0.26 Acres
MLS ID
1698479
Property Type
Residential

Features & Amenities

Total Area
1,850 Sq.Ft.
Neighborhood
Penn Township
Architecture Styles
Two Story
Stories
2
Water Source
Public
Pool
None
Roof
Asphalt
Parking
Built In, Garage Door Opener
Heat Type
Forced Air, Gas
Air Conditioning
Central Air, Electric
Fireplace
Gas
Appliances
Some Gas Appliances, Dishwasher, Microwave, Refrigerator, Stove
Other Interior Features
Pantry
Sewer
Public Sewer
School District
Penn-Trafford
Sales Price
$315,000
Real Estate Tax
$5,237/yr

Downloads

201 Cameron Dr

Schedule a Tour

We would love to help you see this beautiful home! As a full-service brokerage, we can help you tour. Please submit an offer, and answer questions about the buying process.

Thank you

for your interest in 201 Cameron Dr, Manor, PA 15642

201 Cameron Dr
Navigate
Penn Township

Explore Penn Township

Known for its blend of rural, residential, and industrial areas.

read more

I'm Interested In

201 Cameron Dr

or
  • CallAdam Slivka

    License #AB068610

    (724) 787-1659
  • pretitle

    Featured Properties

    • 1280 Armstrong Street For Sale

      $150,000

      1280 Armstrong Street, North Huntingdon, PA 15647

      • 3 Beds
      • 1 Bath
    View All Properties

    Follow Us On Instagram